北區透天
首頁
|
申請房仲網站
首頁
台南大樓
台南店面
台南透天
台南公寓
台南廠房
台南農舍
台南套房
台南華廈
台南別墅
台南辦公室
台南農地
台南建地
台南工業地
首頁
›
台南透天
›
北區透天
›
北區透天-台南北區中華北路一段
最後更新:183天前
檢舉物件不實
|
列印
|
物件留言
台南透天
北區透天
房屋基本資料
案名
台南房屋柯辣媽北外環好市多住商2用透天
案號
地址
台南市北區中華北路一段
銷售狀態
帶看中
售價
售1598萬
房屋類型
透天_別墅
總登記坪數
41.02 坪
格局
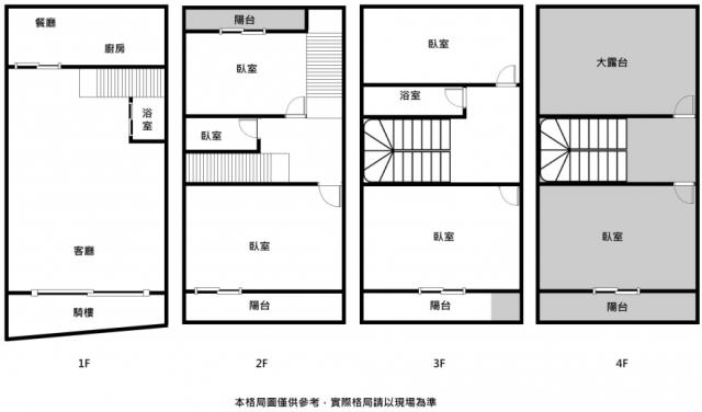
5房,2廳,3衛,5陽台
屋齡
30年
每坪單價
38.96萬/坪
公設比
車位
法拍件
不是
建物所在樓層
1-3樓
管理費
管委會
中庭
電梯
未知
是否為凶宅
300公尺內嫌惡設施
面前道路
約8米路
面寬
縱深
邊間
銷售來源
不動產經紀人/專業仲介
房屋特色
1.近大港國小、社區公園、市場,生活便利
2.5大房、大陽台住商2用多功能
3.屋況好,免整理即可入住
WWW.大台南房屋土地聯賣網.tw
「以上權狀資訊如有記載錯誤,一律依騰本登記資料為準。」
期待眼光獨到的您.前來鑑賞如欲看屋
請找:林先生或柯辣媽
LINE搜尋林先生ID0936816212.柯小姐ID0955966109
證號(100)登字第181516.證號(93)登字第037460號
誠昱不動產仲介有限公司
坪數說明
建物登記總坪數
41.02
土地登記總坪數
20.01
主建物坪數
38.62
停車位坪數
附屬建物坪數
2.4
公共設施坪數
增建坪數
地下室坪數
周邊環境
生活機能
鄰近交通
鄰近地標
公園綠地
鄰近學區
大港國小,文賢國中
捷運站
房屋聯絡人資訊
聯絡人姓名
林威廷
(煩請告知聯絡人,您是在889房屋網看到這則廣告,真摯感恩您的幫忙)
手機
0936-816-212(林威廷)
Line加入好友
所屬公司名稱
住商不動產 台南成大東興加盟店
公司電話
06-2511833
公司傳真
06-2511828
公司地址
台南市永康區小北路30號
網址
http://www.大台南房屋土地聯賣網.tw
贊助商廣告
台南北區中華北路一段-透天
台南透天-0
台南透天-1
台南透天-2
台南透天-3
台南透天-4
台南透天-5
台南透天-6
台南透天-7
台南透天-8
台南透天-9
台南透天-10
台南透天-11
台南透天-12
台南透天-13
台南透天-14
物件留言
請注意,如果您詢問的內容與物件不相符合或是廣告,經過審核,系統將會直接刪除您的發問內容
檢舉物件不實
黃金熱銷
安南區青砂街一段
透天 / 3房
31.04坪
售1188萬
善化區陽光北一路
透天_別墅 / 6房
64.5坪
售2850萬
中西區海安路二段
透天 / 2房
18.61坪
售1330萬
永康區永康區南工街
透天 / 4房
44.14坪
售1088萬
相似物件
麻豆區大山脚
透天 / 4房
52.75坪
售1650萬
仁德區大同路三段
透天 / 6房
55.84坪
售1680萬
北區中華北路一段
透天_店面 / 5房
41.02坪
售1498萬
永康區復華八街
透天 / 4房
58.66坪
售1490萬
本房屋網站為租用式開放房仲網站建置平台,僅提供房屋仲介會員刊登-
北區透天
-等房屋資訊參考,並不涉入任何諮詢、交易。物件(服務)聯絡人公佈的圖文影音資訊若有侵犯智財權或與客戶聯絡交易過程中若衍生民事或刑事等法律問題, 皆與本房屋網站無關。電話:07-7963288
資料處理中,請稍後...
請注意:此案件已下架