台南仁德廠房
首頁
|
申請房仲網站
首頁
台南大樓
台南店面
台南透天
台南公寓
台南廠房
台南農舍
台南套房
台南華廈
台南別墅
台南辦公室
台南農地
台南建地
台南工業地
首頁
›
台南廠房
›
仁德廠房
›
台南仁德廠房-台南仁德太乙路
最後更新:52分鐘內
檢舉物件不實
|
列印
|
物件留言
台南廠房
仁德廠房
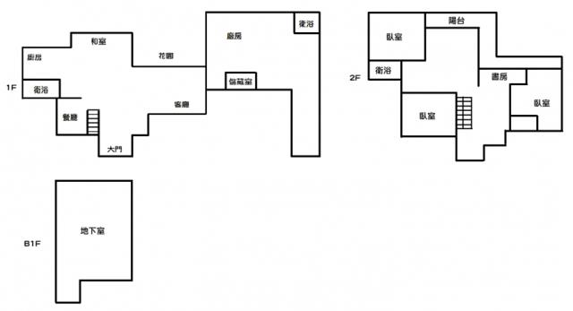
房屋基本資料
案名
太乙20米路甲工廠辦-地249坪
案號
2051
地址
台南市仁德區太乙路
銷售狀態
帶看中
售價
售8888萬
房屋類型
廠房_廠辦_工業住宅
總坪數
249.19 坪
格局
4房,2廳,3衛,1陽台,1廚房
屋齡
36年
每坪單價
35.67萬/坪
公設比
車位
室內多車庫
法拍件
不是
建物所在樓層
共2樓
管理費
管委會
沒有
中庭
沒有
電梯
沒有
是否為凶宅
不是
300公尺內嫌惡設施
面前道路
20米路
面寬
38米
縱深
21米
邊間
銷售來源
不動產經紀人/專業仲介
房屋特色
近仁德-永康-臨20米路
1.稀有太乙甲工工業區廠辦住合一
2.近仁德交流道,車輛進出方便,南來北往便利
3.正20米路旁,大面寬約38米,深約21米
4.廠房方正,適中小企業
坪數說明
建物登記總坪數
160.89
土地登記總坪數
249.19
主建物坪數
停車位坪數
附屬建物坪數
公共設施坪數
增建坪數
地下室坪數
周邊環境
生活機能
鄰近交通
鄰近地標
公園綠地
鄰近學區
捷運站
房屋聯絡人資訊
聯絡人姓名
陳盈秀
(煩請告知聯絡人,您是在889房屋網看到這則廣告,真摯感恩您的幫忙)
手機
0928-010-990(陳盈秀)
Line加入好友
所屬公司名稱
誠昱不動產企業社(住商成大東興店)
公司電話
0928010990 (LINE)
公司傳真
公司地址
台南市永康區小北路30號
網址
http://www.台南秀秀房仲網.tw
贊助商廣告
台南仁德太乙路-廠房
台南仁德廠房-0
台南仁德廠房-1
台南仁德廠房-2
台南仁德廠房-3
台南仁德廠房-4
台南仁德廠房-5
台南仁德廠房-6
台南仁德廠房-7
台南仁德廠房-8
台南仁德廠房-9
台南仁德廠房-10
台南仁德廠房-11
台南仁德廠房-12
台南仁德廠房-13
台南仁德廠房-14
物件留言
請注意,如果您詢問的內容與物件不相符合或是廣告,經過審核,系統將會直接刪除您的發問內容
檢舉物件不實
黃金熱銷
仁德區中正路三段
廠房_廠辦_倉庫
786坪
售1億8800萬
西港區新興街
廠房_廠辦 / 5房
183.64坪
售5800萬
學甲區中山路
廠房_廠辦
138.01坪
售5980萬
仁德區德洋路
廠房_廠辦_倉庫
153坪
售4700萬
相似物件
柳營區
廠房_廠辦_工業住宅
533.5坪
售9071萬
仁德區崑崙路
廠房_倉庫
875坪
售8800萬
安定區近新吉工業區
廠房_廠辦_倉庫
905.12坪
售8800萬
安定區
廠房
904坪
售8800萬
本房屋網站為租用式開放房仲網站建置平台,僅提供房屋仲介會員刊登-
台南仁德廠房
-等房屋資訊參考,並不涉入任何諮詢、交易。物件(服務)聯絡人公佈的圖文影音資訊若有侵犯智財權或與客戶聯絡交易過程中若衍生民事或刑事等法律問題, 皆與本房屋網站無關。電話:07-7963288
資料處理中,請稍後...
請注意:此案件已下架