台南安平大樓出售
首頁
|
申請房仲網站
首頁
台南大樓
台南店面
台南透天
台南公寓
台南廠房
台南農舍
台南套房
台南華廈
台南別墅
台南辦公室
台南農地
台南建地
台南工業地
首頁
›
台南大樓
›
安平大樓
›
台南安平大樓出售-台南安平健康路三段
最後更新:4小時內
檢舉物件不實
|
列印
|
物件留言
|
物件地圖
台南大樓
安平大樓
房屋基本資料
案名
新悅城~亮麗3房平車售1388萬
案號
3143
地址
台南市安平區健康路三段
社區/大樓
新悅城2
銷售狀態
帶看中
售價
售1458萬
售1388萬
房屋類型
大樓
總登記坪數
48.04 坪
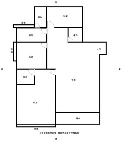
格局
3房,2廳,2衛,2陽台,1廚房
屋齡
9年
每坪單價
28.89萬/坪
公設比
車位
坡道式平面車位
法拍件
不是
建物所在樓層
9樓/共27樓
管理費
3147
管委會
有
中庭
有
電梯
有
是否為凶宅
不是
300公尺內嫌惡設施
面前道路
8米路
面寬
縱深
邊間
銷售來源
不動產經紀人/專業仲介
房屋特色
近市政府~平通路~健康三段~新悅城~安平區
1.24hr飯店室管理,設施完善,回家像度假
2.近地方法院、新市政、永華商圈,生活機能佳
3.近亞果渡假碼頭、漁光島,未來潛力佳
4.契稅:91242
坪數說明
建物登記總坪數
48.04
土地登記總坪數
3.47
主建物坪數
22.33
停車位坪數
9.64
附屬建物坪數
3.52
公共設施坪數
12.55
增建坪數
地下室坪數
周邊環境
生活機能
鄰近交通
鄰近地標
公園綠地
鄰近學區
億載國小,安平國中
捷運站
房屋聯絡人資訊
聯絡人姓名
陳盈秀
(煩請告知聯絡人,您是在889房屋網看到這則廣告,真摯感恩您的幫忙)
手機
0928-010-990(陳盈秀)
Line加入好友
所屬公司名稱
誠昱不動產企業社(住商成大東興店)
公司電話
0928010990 (LINE)
公司傳真
公司地址
台南市永康區小北路30號
網址
http://www.台南秀秀房仲網.tw
贊助商廣告
台南安平健康路三段-大樓
安平大樓-0
安平大樓-1
安平大樓-2
安平大樓-3
安平大樓-4
安平大樓-5
安平大樓-6
安平大樓-7
安平大樓-8
安平大樓-9
安平大樓-10
安平大樓-11
安平大樓-12
安平大樓-13
到Google查看地圖
到Google查看街景
物件留言
請注意,如果您詢問的內容與物件不相符合或是廣告,經過審核,系統將會直接刪除您的發問內容
檢舉物件不實
相似物件
永康區東橋七路
大樓 / 3房
45.59坪
售1508萬
安平區健康路三段
大樓 / 3房
43.45坪
售1198萬
安平區國平北路
大樓 / 3房
40.5坪
售1398萬
歸仁區文化十二街
大樓_華廈 / 3房
41.611坪
售1456萬
安南區永續三街
大樓 / 3房
45.64坪
售1488萬
北區大武街
大樓_店面 / 3房
48.36坪
售1398萬
本房屋網站為租用式開放房仲網站建置平台,僅提供房屋仲介會員刊登-
台南安平大樓出售
-等房屋資訊參考,並不涉入任何諮詢、交易。物件(服務)聯絡人公佈的圖文影音資訊若有侵犯智財權或與客戶聯絡交易過程中若衍生民事或刑事等法律問題, 皆與本房屋網站無關。電話:07-7963288
資料處理中,請稍後...
請注意:此案件已下架