台南市東區透天出售
首頁
|
申請房仲網站
首頁
台南大樓
台南店面
台南透天
台南公寓
台南廠房
台南農舍
台南套房
台南華廈
台南別墅
台南辦公室
台南農地
台南建地
台南工業地
首頁
›
台南透天
›
東區透天
›
台南市東區透天出售-台南東區崇善11街
最後更新:4小時內
檢舉物件不實
|
列印
|
物件留言
台南透天
東區透天
房屋基本資料
案名
崇善商圈-孝親裝潢透天車庫,售1980萬
案號
4002
地址
台南市東區崇善11街
銷售狀態
帶看中
售價
售1980萬
房屋類型
透天_別墅
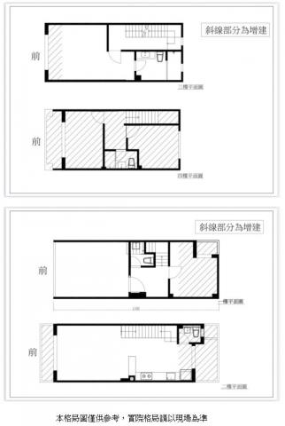
總登記坪數
33.39 坪
格局
4房,2廳,4衛,4陽台,1廚房
屋齡
46年
每坪單價
59.3萬/坪
公設比
車位
室內車庫
法拍件
不是
建物所在樓層
共4樓
管理費
管委會
沒有
中庭
沒有
電梯
沒有
是否為凶宅
不是
300公尺內嫌惡設施
面前道路
8米路
面寬
縱深
邊間
不是
銷售來源
不動產經紀人/專業仲介
房屋特色
近崇善路-8米路
1.整棟重新整理+增建,實際使用
2.空間大幅提升,格局方正,動線佳
3.一樓孝親房+有天井+二樓延伸露台
4.屋內保有自然光,乾爽不潮溼
5.仁和商圈,生活機能完整,採買便利
6.崇善商圈近學區,外食方便,診所林立,生活便利滿分
坪數說明
建物登記總坪數
33.39
土地登記總坪數
17.84
主建物坪數
停車位坪數
附屬建物坪數
公共設施坪數
增建坪數
地下室坪數
周邊環境
生活機能
鄰近交通
鄰近地標
公園綠地
鄰近學區
德高國小,崇明國中
捷運站
房屋聯絡人資訊
聯絡人姓名
陳盈秀
(煩請告知聯絡人,您是在889房屋網看到這則廣告,真摯感恩您的幫忙)
手機
0928-010-990(陳盈秀)
Line加入好友
所屬公司名稱
誠昱不動產企業社(住商成大東興店)
公司電話
0928010990 (LINE)
公司傳真
公司地址
台南市永康區小北路30號
網址
http://www.台南秀秀房仲網.tw
贊助商廣告
台南東區崇善11街-透天
台南透天-0
台南透天-1
台南透天-2
台南透天-3
台南透天-4
台南透天-5
台南透天-6
台南透天-7
台南透天-8
台南透天-9
台南透天-10
台南透天-11
台南透天-12
台南透天-13
物件留言
請注意,如果您詢問的內容與物件不相符合或是廣告,經過審核,系統將會直接刪除您的發問內容
檢舉物件不實
黃金熱銷
仁德區忠義路
透天 / 5房
55坪
售1980萬
安南區安南區國安街
透天 / 5房
30.9坪
售1398萬
相似物件
中西區永華一街
透天 / 3房
38坪
售1980萬
佳里區佳北路
透天
64.86坪
售1838萬
永康區永二街
透天 / 4房
53.62坪
售1880萬
永康區西勢路
透天_別墅 / 4房
56.01坪
售1780萬
本房屋網站為租用式開放房仲網站建置平台,僅提供房屋仲介會員刊登-
台南市東區透天出售
-等房屋資訊參考,並不涉入任何諮詢、交易。物件(服務)聯絡人公佈的圖文影音資訊若有侵犯智財權或與客戶聯絡交易過程中若衍生民事或刑事等法律問題, 皆與本房屋網站無關。電話:07-7963288
資料處理中,請稍後...
請注意:此案件已下架