台南市透天
首頁
|
申請房仲網站
首頁
台南大樓
台南店面
台南透天
台南公寓
台南廠房
台南農舍
台南套房
台南華廈
台南別墅
台南辦公室
台南農地
台南建地
台南工業地
首頁
›
台南透天
›
南區透天
›
台南市透天-台南南區中華北路一段
最後更新:3小時內
檢舉物件不實
|
列印
|
物件留言
台南透天
南區透天
房屋基本資料
案名
中華北路-好市多住商兩永透天,售1598萬
案號
3139
地址
台南市南區中華北路一段
銷售狀態
帶看中
售價
售1598萬
房屋類型
透天_店面
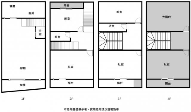
總登記坪數
41.02 坪
格局
5房,2廳,3衛,5陽台,1廚房
屋齡
30年
每坪單價
38.96萬/坪
公設比
車位
騎樓
法拍件
不是
建物所在樓層
共3樓
管理費
管委會
沒有
中庭
電梯
沒有
是否為凶宅
不是
300公尺內嫌惡設施
面前道路
8米路
面寬
縱深
邊間
銷售來源
不動產經紀人/專業仲介
房屋特色
近大港國小~文賢路
坪數說明
建物登記總坪數
41.02
土地登記總坪數
20.01
主建物坪數
停車位坪數
附屬建物坪數
公共設施坪數
增建坪數
地下室坪數
周邊環境
生活機能
鄰近交通
鄰近地標
公園綠地
鄰近學區
大港國小,文賢國中
捷運站
房屋聯絡人資訊
聯絡人姓名
陳盈秀
(煩請告知聯絡人,您是在889房屋網看到這則廣告,真摯感恩您的幫忙)
手機
0928-010-990(陳盈秀)
Line加入好友
所屬公司名稱
誠昱不動產企業社(住商成大東興店)
公司電話
0928010990 (LINE)
公司傳真
公司地址
台南市永康區小北路30號
網址
http://www.台南秀秀房仲網.tw
贊助商廣告
台南南區中華北路一段-透天
台南透天-0
台南透天-1
台南透天-2
台南透天-3
台南透天-4
台南透天-5
台南透天-6
台南透天-7
台南透天-8
台南透天-9
台南透天-10
台南透天-11
台南透天-12
台南透天-13
台南透天-14
物件留言
請注意,如果您詢問的內容與物件不相符合或是廣告,經過審核,系統將會直接刪除您的發問內容
檢舉物件不實
黃金熱銷
歸仁區中山路一段
透天 / 6房
45.98坪
售899萬
新市區新市區大社
透天 / 4房
38.75坪
售1180萬
永康區富強路一段
透天 / 5房
68.8坪
售1838萬
相似物件
佳里區佳里興
透天_店面 / 4房
55.85坪
售1398萬
永康區中正南路
透天 / 6房
37.53坪
售1400萬
佳里區番子寮
透天 / 4房
51.75坪
售1558萬
南區中華南路二段
透天 / 4房
53.461坪
售1488萬
東區長東街
透天_別墅 / 5房
37.61坪
售1520萬
安平區世平五街
透天 / 5房
57.75坪
售1688萬
本房屋網站為租用式開放房仲網站建置平台,僅提供房屋仲介會員刊登-
台南市透天
-等房屋資訊參考,並不涉入任何諮詢、交易。物件(服務)聯絡人公佈的圖文影音資訊若有侵犯智財權或與客戶聯絡交易過程中若衍生民事或刑事等法律問題, 皆與本房屋網站無關。電話:07-7963288
資料處理中,請稍後...
請注意:此案件已下架