台南永康透天
首頁
|
申請房仲網站
首頁
台南大樓
台南店面
台南透天
台南公寓
台南廠房
台南農舍
台南套房
台南華廈
台南別墅
台南辦公室
台南農地
台南建地
台南工業地
首頁
›
台南透天
›
永康透天
›
台南永康透天-台南永康中山南路
最後更新:1小時內
檢舉物件不實
|
列印
|
物件留言
|
物件地圖
台南透天
永康透天
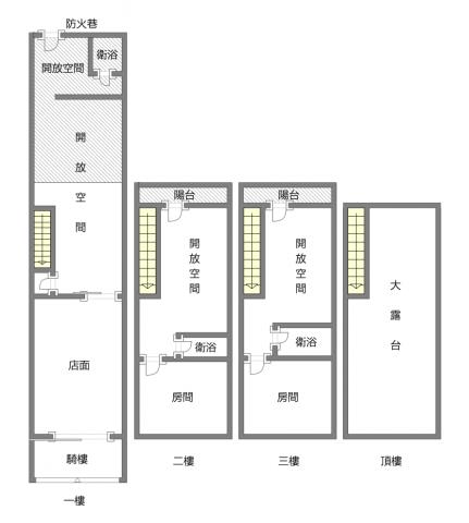
房屋基本資料
案名
近東橋/砲校~20米路金賺店,售2680萬
案號
3357
地址
台南市永康區中山南路
銷售狀態
帶看中
售價
售2680萬
房屋類型
透天_店面
總登記坪數
38.32 坪
格局
2房,4廳,3衛,2陽台,1廚房
屋齡
50年
每坪單價
69.94萬/坪
公設比
車位
騎樓
法拍件
不是
建物所在樓層
共3樓
管理費
管委會
沒有
中庭
沒有
電梯
沒有
是否為凶宅
不是
300公尺內嫌惡設施
面前道路
20米
面寬
縱深
邊間
銷售來源
不動產經紀人/專業仲介
房屋特色
近東橋~砲校~中山南路
1.正20米路中山南路上,砲校正對面,醒目店面。
2.大地坪,一樓店面,二樓以上可規劃住家,使用空間大。
3.周遭環境優越,永康創意園區、台南總圖書館、萬坪公園近在咫尺。
4.坐擁中山南路商圈、東橋商圈、復國商圈,地段優勢無可比擬。
5.周邊眾多商家林立,帶來繁華活力,文武百市皆通。
6.2025年底砲校即將遷移完畢,商機無限。
7.快來把握機會,成就夢想的經營據點!
坪數說明
建物登記總坪數
38.32
土地登記總坪數
33.15
主建物坪數
停車位坪數
附屬建物坪數
公共設施坪數
增建坪數
地下室坪數
周邊環境
生活機能
鄰近交通
鄰近地標
公園綠地
鄰近學區
捷運站
房屋聯絡人資訊
聯絡人姓名
陳盈秀
(煩請告知聯絡人,您是在889房屋網看到這則廣告,真摯感恩您的幫忙)
手機
0928-010-990(陳盈秀)
Line加入好友
所屬公司名稱
誠昱不動產企業社(住商成大東興店)
公司電話
0928010990 (LINE)
公司傳真
公司地址
台南市永康區小北路30號
網址
http://www.台南秀秀房仲網.tw
贊助商廣告
台南永康中山南路-透天
台南永康透天-0
台南永康透天-1
台南永康透天-2
台南永康透天-3
台南永康透天-4
台南永康透天-5
台南永康透天-6
台南永康透天-7
台南永康透天-8
台南永康透天-9
台南永康透天-10
台南永康透天-11
台南永康透天-12
台南永康透天-13
到Google查看地圖
到Google查看街景
物件留言
請注意,如果您詢問的內容與物件不相符合或是廣告,經過審核,系統將會直接刪除您的發問內容
檢舉物件不實
黃金熱銷
新市區新市區大社
透天 / 4房
38.75坪
售1180萬
歸仁區中山路一段
透天 / 6房
45.98坪
售899萬
永康區富強路一段
透天 / 5房
68.8坪
售1838萬
相似物件
永康區忠勇街
透天_店面 / 5房
68.08坪
售2500萬
安南區樂活路
透天_別墅 / 4房
70坪
售2688萬
永康區永大一路
透天_店面 / 4房
77.23坪
售2880萬
中西區光賢街
透天_別墅 / 4房
64.14坪
售2580萬
永康區永康區復國路
透天_店面 / 3房
95.13坪
售2680萬
東區東寧路
透天_店面
38.32坪
售2798萬
本房屋網站為租用式開放房仲網站建置平台,僅提供房屋仲介會員刊登-
台南永康透天
-等房屋資訊參考,並不涉入任何諮詢、交易。物件(服務)聯絡人公佈的圖文影音資訊若有侵犯智財權或與客戶聯絡交易過程中若衍生民事或刑事等法律問題, 皆與本房屋網站無關。電話:07-7963288
資料處理中,請稍後...
請注意:此案件已下架